It’s what I’m looking for
I want to visit this propertyIt's great, but...
We take care of everything
1
Description
ID: 3000143
OPPORTUNITÉ EN ÉTAT FUTUR D’ACHÈVEMENT – SITE INDUSTRIEL À SAINTE-LUCE-SUR-LOIRE
Type of property:Land
Price:Enquire about price
2



In pictures



×
3
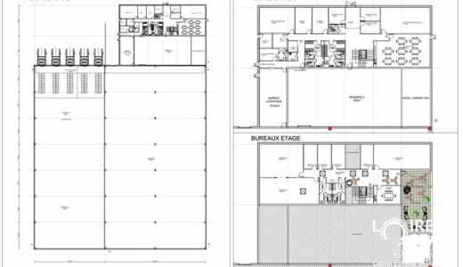
Technical specifications
Plot
Available surface area : 6500 m²
Max plot available 6500 m2
Vocation : Industrielle, Logistique
Access
- Proximité immédiate des grands axes et infrastructures de transport
Site coverage 6500 m2
Maximum building height 11.5 m
Land subdivision possible